NEW

ここにしかない「真心」がある

3,190万円

埼玉県川越市南大塚1丁目11-3

西武新宿線「南大塚」駅徒歩14分

川越線「西川越」駅徒歩35分

東武東上線「川越市」駅徒歩42分

価格
3,190万円
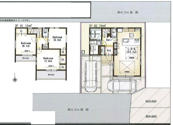
間取り
3LDK
土地面積
102.03㎡
所在地
埼玉県川越市南大塚1丁目11-3
交通

西武新宿線南大塚」駅 徒歩14分

川越線西川越」駅 徒歩35分

東武東上線川越市」駅 徒歩42分

建物面積
84.84㎡
築年月
2025年4月(新築)

物件の特徴

  • バストイレ別

  • カウンターキッチン

  • 浴室乾燥機

セールスポイント

お子様にも安心の人感照明センサー付きです。これからの新生活での暮らしを一新するために、新築戸建てはいかがでしょうか。床暖房の機能が付いています。浴室乾燥機のあるお風呂場は洗濯物を干すときにも便利です。不動産の購入は失敗することが許されない、大きなお買い物です。川越不動産はこの地域に特化しているので、失敗のない不動産購入が可能です(^_^)

ポイント

24時間換気システム 床暖房 駐車2台可 全居室洋室 玄関ポーチ

担当者のコメント

金康 輝彦

セブンイレブン 川越豊田本店まで徒歩6分と近場にコンビニがあるのもポイント。浴室乾燥機付き物件ならば、日中でなくても洗濯物を干せるので日中は忙しいという人にもおすすめです。広々とした15帖以上のLDKで家族とゆったり過ごせます。生活の中では、欠かせない車を2台も駐車可能で便利です。川越不動産へお問い合わせいただければ、西武新宿線南大塚近くにある不動産の詳細情報をお教えいたします(^_^)

基本情報

販売戸数
-
総戸数
-
間取り / 詳細
3LDK
LDK 17.1帖 1室/洋室 7.0帖 1室/洋室 6.1帖 1室/洋室 5.2帖 1室
向き
-
建物面積(坪数)
84.84㎡(25.66坪)
土地面積(坪数)
102.03㎡(30.86坪)
建ぺい率 /
容積率
60%/200%
築年月
2025年4月(新築)
駐車場 /
月額料金
有(2台) 0円
土地権利
所有権
土地
(敷金 / 保証金)
- / -
建物構造
木造 / 2階建
傾斜地部分面積
-
路地状敷地
-
私道負担面積
-
セットバック
記載なし
高圧線下面積
-
施工会社
-
用途地域
第一種住居
地目 / 地勢
宅地 / -
接道状況
二方(南 公道 4.2m)(北 公道 4.2m)
国土法届出要否
不要
都市計画
市街化区域
総区画数 /
販売区画数
-/-
現況
完成済み
その他
法令上の制限
-
取引態様
仲介
引渡し
相談
取引条件の
有効期限
2026年03月01日

設備条件

設備条件
  • バルコニー / 都市ガス / 公営水道 / 公共下水 / 24時間換気システム / 電気有 / 2面バルコニー / 駐車2台可 / 食器洗い乾燥機 / システムキッチン / カウンターキッチン / バス・トイレ別 / 浴室乾燥機 / 温水洗浄便座 / トイレ2ヶ所 / 床暖房 / 複層ガラス
設備(その他)
    -

その他

物件番号
99831333
管理コード
-
建築確認番号
第24UDI1T建03040号
情報更新日
2026年02月15日
次回更新予定日
2026年03月01日
取扱会社
  • 株式会社川越不動産
  • 埼玉県川越市中原町1丁目9-11 
  • TEL:0120-665-772
  • 埼玉県知事 (2) 第023776号
    全日本不動産協会会員・あいおいニッセイ同和損保代理店・川越商工会議所会員・川越法人会会員
  • 全日本不動産協会・川越商工会議所・川越法人会
備考
こちらは省エネ対策にもご利用頂けます。システムキッチン付きの物件でカラーリングも統一できるため見た目に一体感が生まれ、美しいです。トイレが2ヶ所にあるので複数人でも快適に暮らせます。足元から暖まる床暖房が付いています。新生活のサポートをいたします。不動産情報を求めるのであれば、川越不動産のスタッフまでお気軽にお声かけください(^o^)

周辺施設

  • 大東中学校の画像

    中学校

    大東中学校

    216m(3分)

  • セブンイレブン 川越豊田本店の画像

    コンビニエンスストア

    セブンイレブン 川越豊田本店

    446m(6分)

  • 大東保育園の画像

    保育園

    大東保育園

    563m(8分)

  • ファミリーマート 川越インター店の画像

    コンビニエンスストア

    ファミリーマート 川越インター店

    881m(12分)

  • ニトリ川越店の画像

    インテリア

    ニトリ川越店

    900m(12分)

  • 大東東小学校の画像

    小学校

    大東東小学校

    986m(13分)

  • ドラッグストアセキ豊田町店の画像

    ドラッグストア

    ドラッグストアセキ豊田町店

    1105m(14分)

  • コメリ豊田店の画像

    ホームセンター

    コメリ豊田店

    1121m(15分)

  • ドラッグストア マツモトキヨシ ニトリ川越店の画像

    ドラッグストア

    ドラッグストア マツモトキヨシ ニトリ川越店

    1144m(15分)

  • 業務スーパー 川越広栄店の画像

    スーパー

    業務スーパー 川越広栄店

    1303m(17分)

  • 武蔵野総合病院の画像

    総合病院

    武蔵野総合病院

    1321m(17分)

  • 川越南大塚駅前郵便局の画像

    郵便局

    川越南大塚駅前郵便局

    1359m(17分)

  • いなげや 川越南大塚駅前店の画像

    スーパー

    いなげや 川越南大塚駅前店

    1460m(19分)

  • ジェーソン 川越旭町店の画像

    ディスカウントショップ

    ジェーソン 川越旭町店

    1567m(20分)

  • ひまわり南幼稚園の画像

    幼稚園

    ひまわり南幼稚園

    1611m(21分)

  • 川越あさひ幼稚園の画像

    幼稚園

    川越あさひ幼稚園

    1765m(23分)

  • おおぞら保育園の画像

    保育園

    おおぞら保育園

    1943m(25分)

  • ベルク川越むさし野店の画像

    スーパー

    ベルク川越むさし野店

    2240m(28分)

支払いシミュレーション

月々の支払額
9.6
購入希望物件価格
万円
頭金
万円
金利
%
返済額(ボーナス1回分)
万円
返済期間

※ボーナスは自動で年2回分で計算されます。

近隣の物件

  1. タクトホーム施工のフルリノベ中古戸建

    川越市大字的場

    4LDK (94.60㎡)

    2,300万円

  2. プライベートガーデンとテラスのある家

    川越市大字小堤

    4LDK (112.20㎡)

    2,480万円

  3. 変化に富んだ敷地でゆったりライフが過ごせる住まい

    川越市野田町2丁目

    5DK (79.49㎡)

    1,980万円

  4. 桜を愛でる情緒ある佇まい

    川越市氷川町

    3DK (52.98㎡)

    700万円

ここにしかない「真心」がある

ここにしかない「真心」がある

3,190万円

-

3LDK(84.84㎡)

お気軽にお問い合わせください

LINEからお問い合わせ 無料お問い合わせ

株式会社川越不動産

0120-665-772

10:00~18:30

(休:水曜日 年末年始)