ここにしかない「真心」がある

3,390万円

埼玉県川越市南大塚1丁目11-3

西武新宿線「南大塚」駅徒歩14分

川越線「西川越」駅徒歩35分

東武東上線「川越市」駅徒歩42分

価格
3,390万円
間取り/建物面積
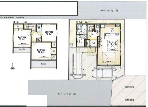
3LDK/84.84㎡
所在地
埼玉県川越市南大塚1丁目11-3
築年
2025年4月(新築)
駐車
有(2台)
交通

西武新宿線南大塚」駅 徒歩14分

川越線西川越」駅 徒歩35分

東武東上線川越市」駅 徒歩42分

ここにしかない「真心」があるの基本情報

物件名
ここにしかない「真心」がある
価格
3,390万円
建物面積
84.84㎡
土地面積
30.86坪(102.03㎡)
築年月
2025年4月(新築)
総戸数
-
所在地
埼玉県川越市南大塚1丁目11-3
交通

西武新宿線南大塚」駅 徒歩14分

川越線西川越」駅 徒歩35分

東武東上線川越市」駅 徒歩42分

ここにしかない「真心」があるの詳細情報

設備条件
  • 駐車2台可
設備(その他)
    -
駐車場/月額
有(2台)/0円
土地権利
所有権
国土法届出
不要
用途地域
第一種住居
取引態様
仲介
引渡し
相談
備考
セブンイレブン 川越豊田本店まで徒歩6分と近場にコンビニがあるのもポイント。道路が南側に面しているので、とてもニーズが高いです。家計に優しい省エネ対策物件です。建物の構造が制震制に特化されていて、安全性が保たれています。豊富な知識と経験を持つ川越不動産のスタッフが、川越市での不動産探しをサポートさせていただきます(*´ω`*)

ここにしかない「真心」があるのコメント(おすすめポイント)

南側に道路があるため十分な日当たりが確保できます。建物の構造が制震制に特化されていて、安全性が保たれています。新築の戸建て物件です。断熱性の高い省エネルギー対策済み物件です。川越市に特化した川越不動産でなら、きっとお客様がお求めの不動産を手に入れることができるでしょう(^o^)

ここにしかない「真心」があるで募集中の物件

  1. 25.66坪 (84.84㎡)

    3,390万円(132.11万円/坪)

周辺施設

  • 大東中学校の画像

    中学校

    大東中学校

    216m(3分)

  • セブンイレブン 川越豊田本店の画像

    コンビニエンスストア

    セブンイレブン 川越豊田本店

    446m(6分)

  • 大東保育園の画像

    保育園

    大東保育園

    563m(8分)

  • ファミリーマート 川越インター店の画像

    コンビニエンスストア

    ファミリーマート 川越インター店

    881m(12分)

  • ニトリ川越店の画像

    インテリア

    ニトリ川越店

    900m(12分)

  • 大東東小学校の画像

    小学校

    大東東小学校

    986m(13分)

  • ドラッグストアセキ豊田町店の画像

    ドラッグストア

    ドラッグストアセキ豊田町店

    1105m(14分)

  • コメリ豊田店の画像

    ホームセンター

    コメリ豊田店

    1121m(15分)

  • ドラッグストア マツモトキヨシ ニトリ川越店の画像

    ドラッグストア

    ドラッグストア マツモトキヨシ ニトリ川越店

    1144m(15分)

  • 業務スーパー 川越広栄店の画像

    スーパー

    業務スーパー 川越広栄店

    1303m(17分)

  • 武蔵野総合病院の画像

    総合病院

    武蔵野総合病院

    1321m(17分)

  • 川越南大塚駅前郵便局の画像

    郵便局

    川越南大塚駅前郵便局

    1359m(17分)

  • いなげや 川越南大塚駅前店の画像

    スーパー

    いなげや 川越南大塚駅前店

    1460m(19分)

  • ジェーソン 川越旭町店の画像

    ディスカウントショップ

    ジェーソン 川越旭町店

    1567m(20分)

  • ひまわり南幼稚園の画像

    幼稚園

    ひまわり南幼稚園

    1611m(21分)

  • 川越あさひ幼稚園の画像

    幼稚園

    川越あさひ幼稚園

    1765m(23分)

  • おおぞら保育園の画像

    保育園

    おおぞら保育園

    1943m(25分)

  • ベルク川越むさし野店の画像

    スーパー

    ベルク川越むさし野店

    2240m(28分)

近隣の物件

  1. 川越市野田町2丁目

    5DK (79.49㎡)

    1,980万円

  2. 川越市大字的場

    4LDK (94.60㎡)

    2,300万円

  3. 川越市大字小堤

    4LDK (112.20㎡)

    2,650万円

  4. 川越市氷川町

    3DK (52.98㎡)

    800万円

ここにしかない「真心」がある

お気軽にお問い合わせください

LINEからお問い合わせ 無料お問い合わせ

株式会社川越不動産

0120-665-772

10:00~18:30

(休:水曜日 年末年始)